Kings Estates are delighted to present this spacious and well arranged second floor two bedroom apartment, situated within the popular Greenway Court development in Seacole Gardens, Southampton. Offered to the market with no forward chain, this attractive home benefits from a bright lounge diner with balcony, fitted kitchen, two bathrooms including an ensuite shower room, lift access, secure gated underground parking for two vehicles, communal gardens, and gas central heating. The property is held on a lease of 125 years from 1 January 2007, leaving approximately 105 years remaining, and would make an excellent first time purchase, downsizer, or investment opportunity in a well connected residential location close to Southampton General Hospital, local amenities, and transport links. Southampton General Hospital is on Tremona Road, SO16 6YD, and Southampton City Council confirms the city has a public transport network covering bus, rail and ferry services.
MAIN DESCRIPTION
Kings Estates are pleased to offer for sale this well presented and generously proportioned second floor apartment, located within the sought after Greenway Court development in Seacole Gardens. The property offers a practical and comfortable layout throughout, with two bedrooms, two bathrooms, and a spacious open plan living arrangement that will appeal to owner occupiers and investors alike.
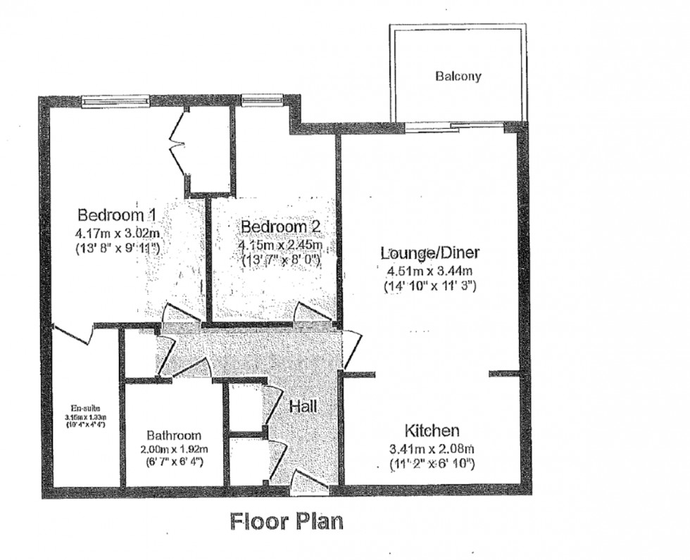
Access is provided via a communal entrance with lift service to the upper floors. Internally, the apartment opens into a welcoming entrance hall which benefits from three separate storage cupboards and a radiator, creating a practical first impression with excellent built in storage.
The lounge diner is a bright and comfortable reception room, arranged on an open plan basis with the kitchen and enjoying direct access to the balcony via double glazed sliding doors. This room offers ample space for both seating and dining furniture, with television points and a radiator adding to its practicality for day to day living.
The kitchen is fitted with a range of wall and base units with work surfaces over, together with a stainless-steel sink and drainer, gas hob, fan oven, extractor hood, and space for appliances. The combination boiler is also located within the kitchen, making this a functional and well-planned cooking space.
Bedroom One is a generous double room with a double-glazed window to the front aspect, radiator, built in wardrobes, and television point. This room also benefits from its own ensuite shower room fitted with shower cubicle, wash hand basin, WC, and radiator.
Bedroom Two is another good-sized room with a double-glazed window to the front aspect and radiator, making it ideal as a guest bedroom, home office, or additional sleeping accommodation.
The main bathroom is fitted with bath, wash hand basin, WC, radiator, and extractor fan.
Externally, the property enjoys the advantage of communal gardens together with secure gated underground parking for two vehicles, a particularly valuable feature for this style of apartment and location.
Overall, this is a very well-balanced apartment offering space, convenience, and strong long term appeal within an established Southampton setting.
ACCOMMODATION
All measurements are approximate and for guidance only.
Entrance Hall
Welcoming entrance hall with three storage cupboards and radiator.
Lounge Diner
4.51m x 3.44m
14'10" x 11'3"
Open plan with kitchen radiator, television points, and double glazed sliding doors opening to front aspect leading onto the balcony.
Kitchen
3.41m x 2.08m
11'2" x 6'10"
Open plan with lounge fitted with wall and base units, work surfaces, stainless steel sink and drainer, gas hob, fan oven, combination boiler, and space for appliances.
Bedroom One
4.17m x 3.02m
13'8" x 9'11"
Double glazed window to front aspect, radiator, built in wardrobes, television point.
Ensuite
3.16m x 1.33m
10'4" x 4'4"
Shower cubicle, wash hand basin, WC, radiator.
Bedroom Two
4.15m x 2.45m
13'7" x 8'0"
Double glazed window to front aspect, radiator.
Bathroom
2.00m x 1.92m
6'7" x 6'4"
Bath, overhead shower wash hand basin, WC, radiator, extractor fan.
Outside
Communal gardens. Secure underground parking for two vehicles.
TENURE AND CHARGES
Tenure is leasehold.
Lease term is 125 years from 1 January 2007.
Approximately 105 years remain.
Ground rent is to be confirmed.
Service charge is to be confirmed.
Council Tax Band C.
Local Authority Southampton City Council.
LOCATION DESCRIPTION
Seacole Gardens is a popular residential setting that is particularly well placed for access to Southampton General Hospital, which is located on Tremona Road, Southampton, SO16 6YD. The area is also well connected for Southampton city centre and wider travel across the city. Southampton City Council states that the city public transport network includes bus, rail and ferry services, and National Rail confirms Southampton Central provides extensive station facilities and onward travel connections.
For buyers considering schooling, nearby options include Shirley Junior School, rated Good by Ofsted, and Upper Shirley High School, also rated Good by Ofsted.
DIRECTIONS
From Kings Estates on Portswood Road, proceed towards the city centre and follow signs towards Shirley and Southampton General Hospital. Continue in the direction of Tremona Road and Seacole Gardens, where Greenway Court can be found within the development.
IMPORTANT NOTICE FOR BUYERS
Successful buyers will be required to complete online identity verification checks The cost of these checks is £50 including VAT per purchaser, payable in advance directly to Kings Estates. An invoice will be provided, and this fee is non refundable.
This process ensures compliance with HMRC anti money laundering regulations and provides a secure, verified transaction process.