Sold Subject to Contract Asking Price Of, £300,000
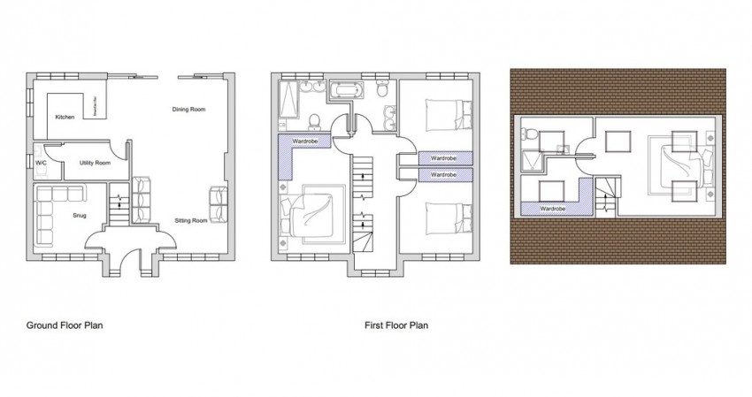
Exciting opportunity for a small developer or someone wanting to self build their dream family home! Full planning permission has been granted for the proposed erection of a detached three-storey, four bedroom dwelling with associated garden, parking area and vehicular access from Gibbons Close. Net internal floor internal is 159.7m2.
The site is discreetly nestled at the end of a popular cul-de-sac, providing seclusion in the heart of Sandhurst. Within a stone's throw of local amenities and a walk away from the memorial park this property offers a private location within close proximity to everything Sandhurst has to offer.